Rif: 654
MASCALI
CATANIA
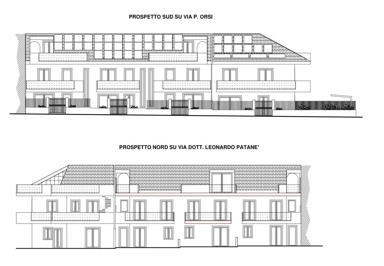
La Prisma è lieta di proporvi fantastica villa a schiera in costruzione, situata al centro del paese compresa tra via Paolo orsi dove sorge il primo ingresso e via dottor. Leonardo patate con il secondo ingresso.
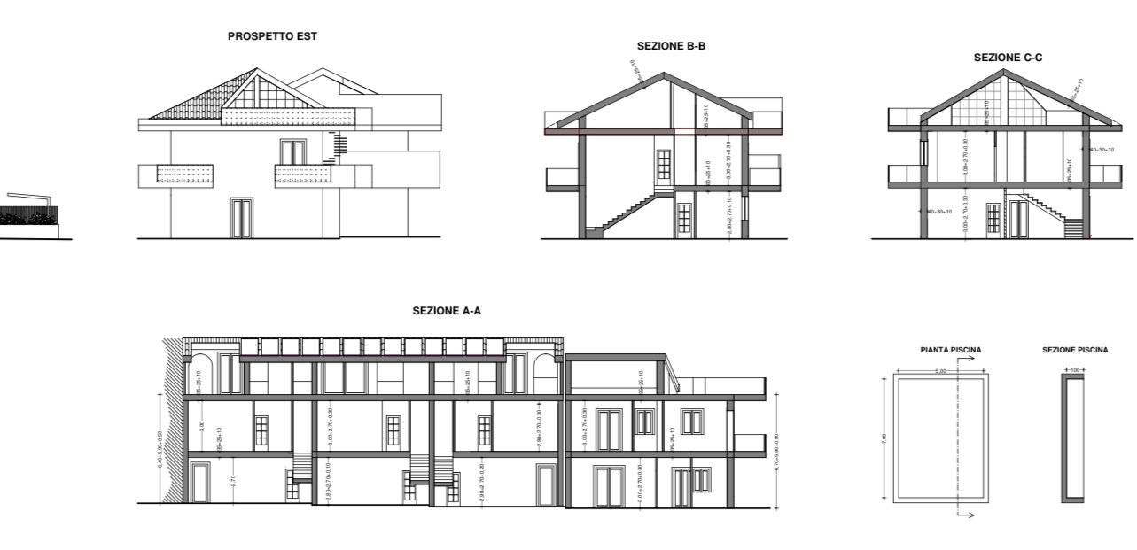
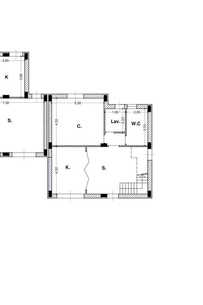
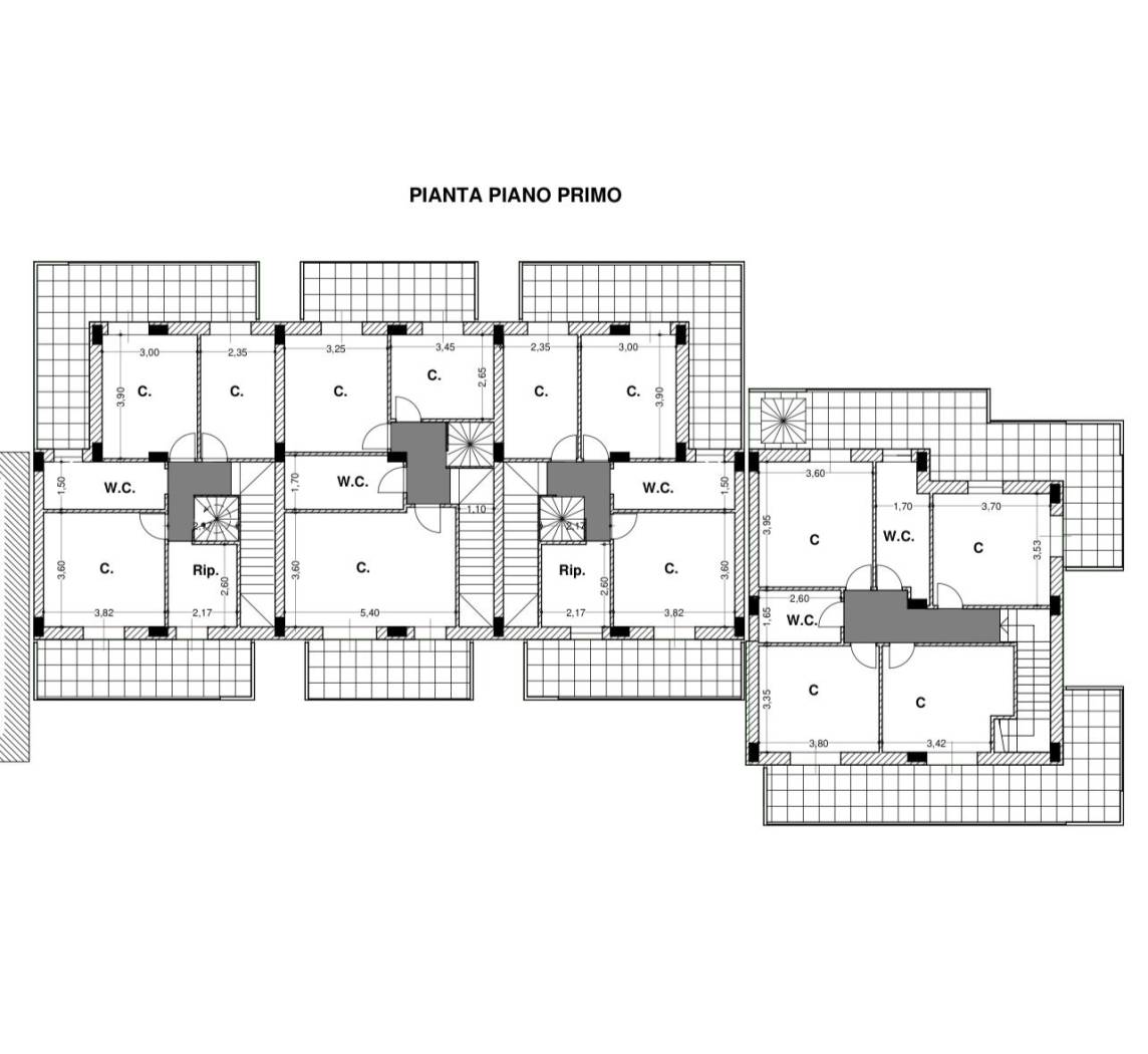
Il progetto prevede giardino ambo i lati della villa di misura complessiva di circa 560 mq, nel lato che affaccia su via dottor Leonardo Patane sono previsti dei posti auto coperti, la villa si sviluppa su tre elevazioni , al piano terra troviamo un ampio soggiorno cucina ,una camera, un disimpegno, una lavanderia e un bagno, salendo le scale arriviamo alla zona notte al primo piano composto da quattro camere da letto di cui una patronale e tutte con affaccio esterno in balcone, disimpegno e due bagni, da un ulteriore scale si accede al piano sotto tetto di circa 74 mq. Ovviamente essendo di nuova costruzione è fornita di tutte le innovazioni a livello di edilizia, si sottolinea l'ottimo capitolato proposto dal costruttore e su richiesta si possono chiedere delle eventuali modifiche.
La villa in questione è la più grande del complesso per questo offre il giardino migliore qui sorge una piscina compresa nel prezzo .
Caratteristiche : impianto fotovoltaico a panelli , infissi in lega di alluminio con vetro camera di 4mm con avvolgibili in alluminio e motorizzati, video citofono , impianto antifurto , impianto di riscaldamento con termosifoni e predisposizione per pompa di calore e climatizzatori.
Posizione : posizionata al centro del paese a poche centinaio di metri da scuole servizi essenziali (farmacie, supermercati e botteghe di ogni genere ), piazza principale e chiesa di Mascali , a 1,5km dalla spiaggia di fondachello e a poche centinaio dal parco livatino.
Prezzo : 428.000 euro , possibilità di non richiedere la piscina in questo caso il prezzo è di 398.000 euro
Classe energetica A++
Il progetto prevede giardino ambo i lati della villa di misura complessiva di circa 560 mq, nel lato che affaccia su via dottor Leonardo Patane sono previsti dei posti auto coperti, la villa si sviluppa su tre elevazioni , al piano terra troviamo un ampio soggiorno cucina ,una camera, un disimpegno, una lavanderia e un bagno, salendo le scale arriviamo alla zona notte al primo piano composto da quattro camere da letto di cui una patronale e tutte con affaccio esterno in balcone, disimpegno e due bagni, da un ulteriore scale si accede al piano sotto tetto di circa 74 mq. Ovviamente essendo di nuova costruzione è fornita di tutte le innovazioni a livello di edilizia, si sottolinea l'ottimo capitolato proposto dal costruttore e su richiesta si possono chiedere delle eventuali modifiche.
La villa in questione è la più grande del complesso per questo offre il giardino migliore qui sorge una piscina compresa nel prezzo .
Caratteristiche : impianto fotovoltaico a panelli , infissi in lega di alluminio con vetro camera di 4mm con avvolgibili in alluminio e motorizzati, video citofono , impianto antifurto , impianto di riscaldamento con termosifoni e predisposizione per pompa di calore e climatizzatori.
Posizione : posizionata al centro del paese a poche centinaio di metri da scuole servizi essenziali (farmacie, supermercati e botteghe di ogni genere ), piazza principale e chiesa di Mascali , a 1,5km dalla spiaggia di fondachello e a poche centinaio dal parco livatino.
Prezzo : 428.000 euro , possibilità di non richiedere la piscina in questo caso il prezzo è di 398.000 euro
Classe energetica A++
Consistenze
| Descrizione | Superficie | Sup. comm. |
|---|---|---|
| Principali | ||
| Immobile - piano terra | 75 Mq | 75 Mqc |
| Immobile - 1° piano | 75 Mq | 75 Mqc |
| Immobile - 2° piano | 75 Mq | 75 Mqc |
| Accessorie | ||
| Giardino/Resede | 560 Mq | 56 Mqc |
| Totale | 281 Mqc | |






